На основании чертежей строим туалет на даче своими руками по типу «Шалаш»
Надземная конструкция «Шалаш» имеет более сложное строение, чем у «Скворечника». Но все труды, потраченные на ее строительство, оправдывают себя, ведь в конечном итоге вы получаете эффектный внешний вид туалета.
Многие дачники выполняют стилизацию такой конструкции под сказочный домик. Благодаря этому на участках можно встретить очень интересные варианты оформления. Для вдохновения можно использовать фото туалетов для дачи своими руками, которых немало в сети интернет.
Строительство такого объекта как «Шалаш» начинается с формирования выгребной ямы. Размерные параметры могут быть взяты из предыдущего типового проекта. В зоне размещения углов ямы следует сделать углубления. В них будут помещены бетонные блоки
Очень важно при этом соблюсти точную геометрию. Чтобы конструкция получилась прямоугольной, необходимо измерять расстояние между бетонными блоками. Не забывайте проверять основание по диагоналям
Они также требуют измерения и должны в конечном итоге получиться одинаковыми
Не забывайте проверять основание по диагоналям. Они также требуют измерения и должны в конечном итоге получиться одинаковыми.

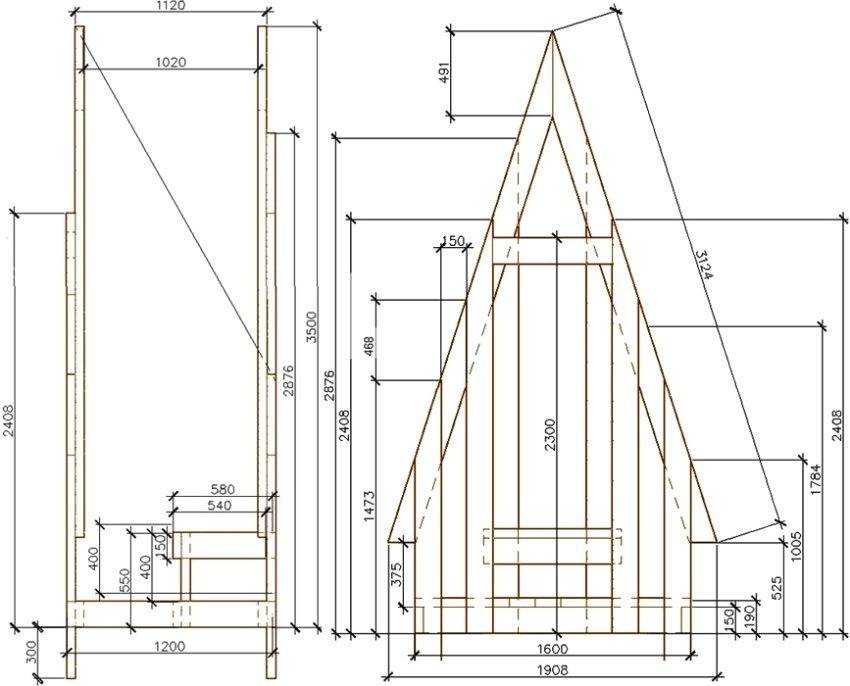
Туалет «Шалаш», рисунок 1: чертеж с размерами, вид сбоку и спереди
Согласно этой простой инструкции можно без проблем выполнить монтаж туалета на основании подготовленных чертежей.
Поэтапное строительство:
монтаж фундаментного основания на изолирующий от влаги материал. Достаточно воспользоваться рубероидом, который предназначен как раз для этих целей. Укладка материала осуществляется в несколько слоев. 2-3 прослоек будет достаточно;

Туалет «Шалаш», рисунок 2: передняя стенка
- сборка нижней части каркаса. Для этого используется брус с сечением 50х50 мм. Размер основания составляет 1х1 м. Заколачивание делается с помощью обрезных досок. Эта своеобразная опалубка покрывается настилом из половых досок;
- изготовление технологического отверстия. В днище выполняется прорезь любой понравившейся формы. Здесь действуют такие же размерные ограничения, как и в случае со «Скворечником»;
- обработка деревянного основания антисептическими средствами. Нужно со всех сторон нанести на поверхность основания антисептическое средство. При выполнении туалета своими руками руководствуйтесь инструкцией, чтобы удостовериться в том, что все выполняемые вами действия верны;
- сборка задней и передней частей каркаса. Для выполнения этого этапа используйте чертежи, которые у вас имеются, или эскизы. Подойдут даже фото, взятые из сети, если вы достаточно хорошо разбираетесь в размерах и обладаете навыками в обращении с древесиной.

Туалет «Шалаш», рисунок 3: задняя стенка
Заключительные этапы строительства «Шалаша»
На заключительных этапах строительства выполняется установка всех деталей и доработка каркаса. Дальнейшая работа выглядит следующим образом:
- отделка деталей «Шалаша». Задняя и передняя стенки с внутренней части отделываются вагонкой;
- монтаж передней и задней стенок. Эти детали устанавливаются на пол и скрепляются с помощью обрезков, оставшихся от работы с досками;
- монтаж деревянной обрешетки из досок. После изготовления этого элемента выполняется его обшивка;
- организация крыши. С помощью досок, длина которых должна быть не меньше 1,8 м выполняется кровля для «Шалаша». Для этого материал следует упереть на заднюю и переднюю части конструкции и зафиксировать его крепежными элементами на деревянных рейках. В результате получится крыша;
- укладка кровельного материала;

Туалет «Шалаш», рисунок 4: каркас, обшивка пола и помоста
- монтаж конька (элемент крыши). Коньковую часть кровли можно украсить фигуркой, выполненной из древесины. Она позволит создать единый стиль оформления;
- установка дверной конструкции. Перед монтажом двери следует заранее закрепить на ней ручку и крючок. С наружной стороны можно прибить ветряную вертушку, имеющую произвольную форму;
- нанесение заключительной отделки. Древесину следует покрыть лакирующим или красящим составом на масляной основе.
Этот вариант туалета на приусадебном участке позволяет разгуляться фантазии и не налагает существенных ограничений в отношении дизайна. Используйте многочисленные фото и видео материалы для того, чтобы найти интересные идеи для своего сказочного домика.

Туалет «Шалаш», рисунок 5: внешняя обшивка
Выбор участка
Выбирая на участке место для туалета, надо заранее знать, как будет выполняться сбор и утилизация нечистот. Часто для таких сооружений роют выгребные ямы, но используют и такие конструкции:
- Септики и пудр клозеты. Они располагаются на расстоянии 16–20 метров от остальных сооружений.
- Биотуалеты. Это готовые покупные конструкции, которые вкапываются в землю на участке недалеко от проезжей части. Это надо, чтобы ассенизаторская техника могла подъехать и выкачать нечистоты.
- Люфт-клозеты. Представляют собой изолированные ёмкости, в которых накапливаются нечистоты. Удаляются они через трубу. Отверстие, через которое происходит удаления отходов жизнедеятельности, располагается сбоку.
Существуют определённые правила по выбору участка для туалета, которые нужно выполнять. Несоблюдение этих требований обычно приводит к неприятностям.
Когда домовладельцы не соблюдают эти правила, то на законных основаниях их заставят либо снести постройку, либо заплатить большой штраф. Кроме этих важных правил о месторасположении строения, надо учитывать и практические рекомендации по облагораживанию и обустройству туалета.
- Для удобства постройку не стоит располагать в дальнем углу дачного участка. Когда туалет размещён далеко от жилого дома это приносит определённые неудобства в экстренных ситуациях, да и ночью неприятно бежать по темноте в конец участка.
- При определении участка под отхожее место учитывают и мнение соседей. Неприемлемо располагать туалет возле беседки соседей. Оптимальный вариант – расположить его параллельно соседскому туалету.
- Постройка должна быть: красиво оформленной, удобной для использования, не вызывать соседский гнев и не вредить природе.
Поэтому план по постройке туалета своими силами может быть расписан следующим образом:
- Определяется участок под сточную уличную канализацию, продумываются варианты утилизации.
- С учётом личных предпочтений и в соответствии с вашим ландшафтным дизайном подбирается вариант строения: скворечник, домик, кабина либо другой дизайн.
- Внешнее оформление должно быть продумано так, чтобы оно было сочетаемо с окружающим расположением.
- Выполняются необходимые расчёты, чтобы закупить стройматериал.
Плюсы и минусы туалетов для дачи из дерева
Как и любое другое строение, расположенное на открытом воздухе, деревянные кабинки дачного туалета подвержены влиянию окружающей среды, то есть воздействию климата, влаги, температуры, давления и времени. Поэтому перед тем как начать постройку туалетной кабинки на своей даче, нужно оценить все преимущества и недостатки такого проекта.
Преимущества
Строительство из древесины всегда было и будет востребованным – оно является традиционным для России. Для дачи и загородного домостроения этот материал является самым популярным, и вот по какой причине:
- все конструкции из древесины выглядят очень эстетично;
- деревянные уличные постройки, в том числе и кабинку туалета для дачи, можно покрасить в любой цвет, что позволяет создать единую композицию с другими объектами участка в целом;
- строительство деревянного туалета на даче – это недорогая постройка, которую можно осуществить своими руками даже при отсутствии опыта работы с этим материалом;
- для строительства туалетного домика можно использовать утилизированный или выбракованный материал, что существенно сэкономит средства;
- современные пропитки и составы для сохранения древесины помогут увеличить срок эксплуатации туалетной кабинки;
- при демонтаже старого деревянного домика на даче весь строительный материал можно использовать вторично.
Недостатки
Древесина – природное органическое сырье, которое подвержено гниению и разложению. Кроме этого, пористая структура дерева и материалов из древесины – это привлекательная среда для мелких насекомых, жучков и грызунов. Эти факторы можно назвать основными недостатками деревянных построек, в том числе и уличных туалетных домиков на даче.
Постройки из древесины боятся следующих факторов:
- повышенной влажности, сырости;
- замерзания и оттаивания и частых перепадов температур;
- непосредственного контакта деревянного материала с водой и почвой;
- отсутствия вентиляции, застоя влажного воздуха и скопления конденсата;
- резких температурных перепадов;
- повышенного влияние ультрафиолета;
- сильного давления, механического воздействия.
Предупреждение! Все уличные деревянные постройки и туалетные домики на даче нуждаются в обязательной обработке специальными составами и пропитками в целях защиты материала от вредного воздействия окружающей среды и жизнедеятельности жучков и грызунов.
Нормы и рекомендации по установке
Так как стационарная канализационная система на дачных участках — редкость, проблема с отходами решается при помощи выгребной ямы. Именно наличие ее или септика определяет все ограничения и требования по размещению туалетного домика.
Итак, установка дачного туалета предполагает его удаление от:
- жилого дома на 10-12 метров;
- детской игровой площадки или гаража с погребом на те же 10 + метров;
- бани или летнего душа на 8 м;
- стационарного источника питьевой воды на 25 или более метров;
- набираемого колодца на 8 м;
- общего забора с соседями минимум на 1 метр;
- забора, выходящего на улицу, на 3-5 м.
Важно! Требования СНиП 30-02-97 — не рекомендации, а правила, которые обязательно нужно соблюдать. Нарушителям грозит штраф до 5000 рублей и принужденный перенос дачного туалета
Вышеперечисленные требования, позволяют предотвратить множество проблем, которые может создать неправильно расположенный туалет с выгребной ямой. Среди возможных проблем:
- неприятные запахи на своем или соседском дачном участке, которые не только нарушают комфорт, но и наносят вред здоровью;
- вредоносные бактерии, заражающие землю и культуры, растущие в ней;
- порча питьевой воды (если выгребная яма располагается слишком близко к скважине).
Важно! Если нечистоты из дачного туалета будут уходить в выгребную яму, расположите последнюю так, чтобы к ней могла подъехать ассенизаторская машина. Чтобы построить комфортный дачный туалет, нужно запомнить не только расстояния от ближайших построек, но и габариты самого туалетного домика
Размеры кабинки уже не регламентируются специальными документами, они зависят лишь от личных предпочтений
Чтобы построить комфортный дачный туалет, нужно запомнить не только расстояния от ближайших построек, но и габариты самого туалетного домика. Размеры кабинки уже не регламентируются специальными документами, они зависят лишь от личных предпочтений.
С одной стороны может показаться, что чем просторнее — тем лучше. С другой — на большую конструкцию придется заложить больше затрат: это касается не только финансов, но и сил, а также площади на участке.
Поэтому при строительстве туалета на даче своими руками рекомендуется соблюдать принцип достаточного комфорта: то есть сделать сооружение не больше, чем на самом деле нужно. Чтобы определить габариты туалета на даче было проще, вот некоторые полезные цифры:
- габариты покупных биотуалетов ~110-120 см по каждой стороне;
- размеры готового биоунитаза примерно 40*40 см;
- по бокам от унитаза или отверстия должно быть около 30 см с каждой стороны;
- перед сиденьем желательно оставить минимум 55-60 см до двери.
Дачный туалет из кирпича
Если вы планируете пользоваться дачным туалетом на протяжении многих лет, да ещё и желаете хорошенько утеплить его, то есть смысл отказаться от древесины и использовать более долговечный материал – кирпич. Да, времени и сил на строительство своими руками уйдет больше. Зато и результат не разочарует.
Для работы потребуются такие материалы, как:
- бетон,
- дверь,
- кирпичи,
- брус сечением 30×30-40×40 мм,
- кровельный материал (шифер, ондулин, черепица, рубероид или любой другой).
Когда всё необходимое есть под рукой, следует изучить чертежи и фото, после чего начинать строить подходящий туалет своими руками.
В первую очередь обустраивается выгребная яма. Как сделать её расскажем чуть позже. После завершения этой работы необходимо позаботиться о фундаменте. Ведь кирпичный туалет весит немало, поэтому без надежного основания тут никак не обойтись.
По периметру будущего туалета выкапывается траншея глубиной в 40-50 см и шириной примерно на 10-15 см больше ширины стен самой постройки. На дно засыпается песок. Он выравнивается и обильно увлажняется. Сюда же устанавливается опалубка (использовать можно фанеры, прямой шифер, доски, горбыль или любой другой материал). На пучинистом грунте фундамент придется армировать. Сделать это несложно – достаточно связать простейший каркас из четырех прутов арматуры и установить в опалубку. Затем туда же заливается бетон. Нужно дать ему набрать твердость хотя бы пару недель, после чего можно приступать к строительству дачного туалета из кирпича.
На бетонное основание укладывается раствор, который тщательно выравнивается, а поверх него устанавливают кирпичи
Важно проверить, чтобы первый ряд был ровным – желательно использовать уровень. Даже небольшие погрешности могут привести к тому, что каждый следующий ряд будет более неровным
Оптимальный размер туалета – от 120×120 до 140×140 см при высоте 200-220 см.
Когда первый ряд кирпичей уложен, на краях натягивается тонкая, прочная нить – это облегчит укладку следующих рядов, позволяя выравнивать каждый камень.
При укладке не стоит забывать про дверной проем – его размер должен быть около 180-200 см высотой и 60-80 см шириной. На противоположной стене желательно оставить небольшие окошки для вентиляции. Впоследствии их можно застеклить или же просто оставить такими же.
Крышу лучше сделать односкатной. На кирпичный каркас укладывается обрешетка из бруса. Если используется шифер или черепица, то материал укладывается на брус. При использовании рубероида или ондулина, на брус укладывается лист фанеры, а кровля монтируется поверх него.
Садовый туалет из кирпича построен, причем своими руками, без привлечения специалистов!
Видео
Организация выгребной ямы и постройка фундамента
Самый популярный туалет — с выгребной ямой. Это связано с простотой его эксплуатации. Процесс использования весьма прост и состоит в прямом попадании отходов в глубокую яму. При заполнении ямы более, чем на 70%, она требует соответствующей очистки.
Организация ямы – процесс не очень сложный и, в принципе, его можно выполнить своими руками. Выкопав яму нужной глубины (рекомендуемые ее параметры – 2×2 метра и в глубину 2 метра), следует перейти к укреплению стен ямы, которые в будущем послужат фундаментом для надземной постройки. Укрепить яму можно с помощью досок, которые перед этим необходимо обработать специальным антисептиком. Яму можно укрепить бетонными кольцами или с помощью кирпичной кладки.
При кирпичной кладке нужно соблюдать ее шахматный порядок, чтобы позаботиться о будущей очистке выгребной ямы. Последние шесть рядов кирпича кладутся без каких-либо щелей всплошную. Если же вы занимаетесь сооружением люфт-клозета, то он требует определенных усилий по организации полной герметизации ямы. Для достижения этой цели на дно полученной ямы заливается бетонная стяжка. Если же вы решили сделать кирпичную основу, то в конечном итоге она все равно заливается бетонным покрытием.
Для заливки бетона делается опалубка, которая может выполняться с помощью обыкновенных досок или брусков. После полного застывания бетона опалубочный каркас полностью демонтируется.
Деревянная опалубка
Альтернативным вариантом очистки выгребной ямы может стать ее засыпка специальными химическими средствами или же полная ее засыпка и перенос туалета в другое место. Такой вариант будет интересен тем, кто не хочет постоянно заниматься очисткой выгреба.
Туалет с выгребной ямой
Лучший деревенский туалет – это туалет с выгребной ямой. Для ее очистки придется вызывать ассенизатора, но зато нужник будет служить очень долго и будет максимально экологичным.
Выгребную яму делают так:
Копают углубление там, где будет стоять туалет. Размеры котлована (и в стороны, и вниз) должны быть где-то на 40 см больше, чем размеры будущей ямы.
На дно углубления высыпают глину, разведенную водой до пастообразной формы. Толщина глины – от 20 до 30 см. Этот слой будет мешать нечистотам впитываться в грунт.
Когда глина полностью высохнет, дно и стены ямы покрывают кирпичом или просмоленными досками. Сверху штукатурят и смазывают водоотталкивающей пропиткой
Важно выбрать пропитку, которая подходит для агрессивной среды.
Сверху ямы кладут перекрытие из бруса или досок. Толщина материала – от 40 мм
В перекрытии делается отверстие для люка. Сам люк делают двойным, чтобы минимизировать запахи.
Устанавливают трубу для вентиляции.
После этого можно построить туалет на улице над выгребной ямой. Подойдет любой вид сооружения, главное – чтобы по размерам он совпадал с габаритами ямы.
Глубина ямы для дачного туалета
Каждому, кто сооружает дачный туалет, нужно знать, какую яму копают в таких случаях. Слишком большое углубление не нужно – достаточно будет 1х1,5 м, а если туалетом будут пользоваться нечасто, то даже 1х1,2 м. Глубина – от 2,5 до 3 м.
В идеале выгребная яма должна быть прямоугольной, а не квадратной. Это упрощает работу ассенизатора, ведь на поверхности более длинной стороны ямы можно обустроить люк, куда будет окунаться шланг.
Люфт-клозет
Если необходимо обустроить летний туалет, которым зимой не будут пользоваться – подойдет вариант с люфт-клозетом. Это небольшая кабинка с унитазом, на небольшом расстоянии от которой находится герметичная емкость для нечистот. Можно даже установить люфт-клозет внутри дома, рядом со стеной, а емкость – снаружи.
Туалет с бочкой
Туалет для дачи, построенный своими руками, может использовать вместо выгребной ямы бочку. Принцип такой:
- если грунтовые воды залегают глубоко, то у бочки удаляют дно и используют только оставшийся цилиндр – его просто вкапывают в землю под туалетом;
- если грунтовые воды находятся близко к поверхности, то у бочки оставляют дно и используют ее как обычную выгребную яму – вызывают ассенизатора по мере заполнения.
Выгребная яма из шин
Из старых автомобильных шин можно устроить отличную выгребную яму. Объем вмещаемых отходов зависит только от глубины ямы – чем больше шин в ней разместят, тем реже ее придется чистить.
Делают так:
- Выкапывают выгребную яму. Глубина – на 20 см больше, чем суммарная ширина покрышек. В этом случае яму делают не прямоугольной, а круглой – по форме шин.
- Высыпают на дно ямы гравий, формируя слой толщиной в 20 см.
- На гравий кладут покрышки, одну на другую.
- Сверху делают деревянное перекрытие и устраивают туалет любого вида.
Хотя стыки между шинами не герметичны, отходы сквозь них почти не просачиваются. Гравий служит хорошим фильтром для жидкости, а густые нечистоты придется иногда удалять самостоятельно.
Яма для дачного туалета из кирпичей
Сельский туалет своими руками построить нетрудно. Но если грунтовые воды на участке залегают очень близко к поверхности, то выгребную яму следует делать полностью герметичной. Лучший способ – использовать кирпичи:
- Копают яму желаемых размеров.
- Дно заливают слоем бетона толщиной около 10 см. Для равномерного распределения бетона используют влажный песок.
- Через неделю, когда бетон полностью затвердеет, начинают строить кирпичные стены. Делают это так же, как и при любом строительстве из кирпича – по одному ряду, смазывая стыки бетоном.
- Когда стенки ямы будут полностью покрыты кирпичами – оставляют до полного застывания. Спустя 3 недели уже можно строить туалет.
Яма из железобетонных колец
Если грунтовые воды залегают глубоко, то можно использоать для выгребной ямы железобетонные кольца. Это отличный вариант – они просты в применении, надежны и полностью герметичны. Поэтому их широко используют в создании колодцев.
Устанавливают кольца так:
- Выкапывают круглую яму, диаметр которой – где-то на 30 см больше, чем диаметр кольца. Высоту ямы «подгоняют» под общую высоту колец, чтобы не осталось пространства, не покрытого железобетоном.
- Насыпают на дно ямы до 15 см гравия.
- Ставят первое кольцо, смазывают окружность сверху бетоном и ставят второе кольцо. Всего устанавливают от 2 до 4 штук.
- Снова насыпают гравий так, чтобы он заполнил нижнее кольцо хотя бы наполовину.
Виды устройства туалетов в загородных условиях
Существуют различные методики устройства туалетов на загородном участке, которые применяются в местах, где отсутствует канализация. Все они полностью автономны и не требуют наличия водопровода и сложных канализационных сооружений. Некоторые из них достаточно просто купить в магазине. Другие нужно соорудить на участке по установленным правилам.
Туалет на даче обшитый сайдингом смотрится весьма неплохо
Туалеты бывают следующих видов:
обычный туалет, имеющий яму для экскрементов, выглядит как кабинка, установленная над ямой, глубиной не менее 1,5 м. Кабинка изготавливается из любого материала от досок до пластика. Поверхность стен и дна септика укрепляется во избежание обвала. По мере необходимости нечистоты удаляются. Место для сидения устраивается в виде стула или просто делается отверстие в полу;
Туалет на даче может выглядеть очень оригинально
пудр-клозет. Этот тип отличается от предыдущего отсутствием каких-либо углублений в земле. Вместо этого под место для сидения устанавливается любая подходящая емкость. По окончании каждого пользования, экскременты обильно посыпаются торфом или обычной золой. Процесс похож на припудривание. Отсюда и такое название. Емкость имеет вентиляцию, выходящую наружу. По мере наполнения содержимое выносят в яму для компоста, где, благодаря торфяной смеси, оно перерабатывается в прекрасное органическое удобрение;

Аккуратный туалет из строганной доски
туалет типа люфт-клозет можно устроить прямо в доме, около внешней стены. Яма должна частично заходить под дом в этом месте и иметь уклон наружу. Все внутренние поверхности септика должны быть полностью герметичными. Унитаз непосредственно соединяется с ямой при помощи канализационной трубы небольшой длины. Снаружи имеется люк для откачки содержимого. Такой вариант можно устроить в местах, где возможно организовать вывоз отходов на ассенизаторской машине;

Туалет в виде огромного пня
биотуалет – это устройство, изготовленное промышленным способом, оборудованное герметичным ведром с сиденьем сверху. Экскременты в нем нейтрализуются при помощи биореагентов, которые засыпаются внутрь;
Туалет из деревянной дранки
в химическом туалете, в отличии от предыдущего, применяются химические вещества для разложения отходов, что не позволяет использовать их как удобрения в дальнейшем на своем земельном участке;
Туалет на улице в японском стиле
торфяной туалет объединяет в себе особенности биотуалета и пудр-клозета. Имеет вид унитаза, оборудованного емкостью с торфом. Каждый раз вместо воды из емкости сыпется торф. Отходы скапливаются в ведре и могут быть применены как удобрение.
Деревянный туалет на даче с односкатной крышей
туалет на даче своими руками Полезный совет! Экскременты, переработанные с помощью естественных биокомпонентов, являются прекрасным удобрением. Их необходимо утилизировать в яму для компоста, в целях дальнейшего использования на своем дачном участке.
Цвет деревянного туалета может гармонировать с окружающим ландшафтом





























