Можно ли и как, в какой цвет красить скворечник гуашью, что на нем нарисовать?
Декоративный скворечник служит, прежде всего, для красоты. Поэтому при его создании уместно использовать как всевозможные декорации, так и краску.
Для окрашивания можно использовать акриловые краски, гуашь, масляные краски на основе олифы. Гуашь очень удобна в использовании, так как она быстро сохнет.
Чтобы гуашевая краска легла ровно на поверхность, нужно соблюдать определенную последовательность:
- Сначала отшлифуйте наждачной бумагой поверхность, на которую будете наносить краску.
- Затем нанесите основу — белую акриловую краску. Подождите до полного высыхания.
- Следующий этап — нанесение эскиза рисунка и роспись гуашью.
- Дождитесь полного высыхания гуаши, а затем вскройте рисунок лаком.
- Лак желательно нанести пару раз.
Если вы не умеете рисовать, можно воспользоваться трафаретами. Заранее заготовленные шаблоны просто переведите на скворечник с помощью карандаша, а затем раскрасьте кистью.
Что можно нарисовать на скворечнике? Все, что вам подскажет фантазия — птицы, цветы, узоры, бабочки, траву и деревья, абстрактные узоры. Нет предела совершенству. Примеры рисунков на скворечниках вы можете увидеть ниже на фото.

Скворечник с рисунками

Как раскрасить скворечник гуашью

Расписные скворечники
Как правильно повесить скворечник?
Развешивать скворечники или другие домики для птиц предпочтительнее либо осенью, чтобы неперелетные птицы смогли перезимовать в них, либо же весной до 25 марта, когда приблизительно начинается весенний залет птиц.
Скворечник размещают с легким наклоном вперед, чтобы птенцам было удобнее из него выбираться. Для закрепления скворечника на дереве не рекомендуется использовать гвозди, поскольку так можно навредить дереву. Самый безопасный и оптимальный вариант — использование веревки. Для развешивания можно закрутить в боковые стенки еще 4 шурупа, за которые будет держаться капроновая веревка. Одна петля держится за сучок на дереве, а вторая не дает домику болтаться от сильного ветра.
Если деревьев поблизости нет или они недостаточно высоки, можно прикрепить скворечник к длинному шесту. В землю вкапывается отрезок металлической трубы, и на него помещают шест с птичьим жильем.
Желательно, чтобы перед скворечником было относительно открытое место для подлета к нему птиц. Однако синички предпочитают дома, спрятанные от посторонних глаз глубоко в кроне дерева.
Если скворечников несколько, размещать их можно не ближе 10 м друг от друга. В противном случае домики будут просто пустовать. На одном дереве может быть только один скворечник, чтобы «жители разных квартир» не конфликтовали между собой.
На какой высоте вешать скворечник?
Размещать домик нужно на высоте от трех метров. Существует траектория, по которой вылетает птенец. Он выпрыгивает, а затем начинает махать крыльями. При этом земля приближается. Все по законам физики: высота, сопротивление воздуха, скорость свободного падения. Но еще и время на сообразительность. Чем дольше он думает, тем ближе земля. У птенца должно быть время на свободное падение. Чем ниже гнездо и глупее птичка, тем меньше времени на выживание. С земли редко кто поднимался в небо не умея летать.
Наклон домика для птиц
Небольшой наклон приветствуется. Вода не затекает по стенке в леток. Сделать его не трудно, прибив палочку вверху на задней стенке. Оптимальный уровень наклона — 5°.
Создание односкатного скворечника
Несколько сложнее собирается односкатный скворечник (жилище для пернатых с плоской крышей). Усложняется задача тем, что готовых деталей нет – их нужно самостоятельно изготовить. Плюс предварительная разработка чертежа – как основа корректного моделирования скворечника.
Процесс выполнения скворечника с односкатной крышей выполняется поэтапно:
Первое, что необходимо сделать после разработки эскиза с замерами, – это перенесение всех размеров на предварительно обработанные заготовки в виде досок. Толщина досок может колебаться в интервале 1,5-2 см. Чтобы сделать правильную разметку, необходимо воспользоваться рулеткой, металлической линейкой и простым карандашом. После выполнения разметки по дереву необходимо переходить к непосредственному выпиливанию при помощи электролобзика. Если последнего нет, то можно использовать стандартную ручную ножовку, но, поскольку она оставляет за собой на торцах каждой детали заусенцы, гораздо аккуратнее (да и комфортнее) будет проводиться работа лобзиком. Второй этап работы над скворечником – это просверливание в нем отверстия, служащего для пернатых входом в их будущее жилище (леток). Вначале, исходя из данных чертежа, на древесном бруске делается разметка все той же металлической линейкой и простым карандашом. А затем посредством сверла аккуратно выпиливается леток. Чтобы птицам было комфортно пребывать внутри скворечника и удобно перемещаться к летку вверх со дна, внутренняя поверхность передней доски нарочно покрывается мелкими выбоинами, царапинами, дырочками. Делается это для того, чтобы шероховатая поверхность внутренней стороны позволяла птицам цепляться коготками за стену и быстрее перемещаться по направлению к летку. Такие манипуляции тоже проводятся зачастую посредством сверла. Следующий этап – соединение передней панели с боковой. Процесс осуществляется за счет просверливания в нужных местах, обозначенных на предварительном чертеже и перенесенных на готовые материалы, соответствующих отверстий под саморезы. Последние ввинчиваются в дерево посредством шуруповерта. Начинать сцепление необходимо именно с этого момента, чтобы торцевая часть досок не раскололась на момент вкручивания в нее саморезов. Затем по той же схеме к передней панели присоединяется вторая боковушка, а уже в конце – задняя панель. В итоге на каждую сторону идет в расход по три самореза
Важно помнить о том, что соединение панелей должно основываться на их перпендикулярности по отношению друг к другу, все брусья соединяются между собой исключительно под прямым углом для получения в итоге правильной геометрической конструкции. Следующий шаг – крепление донышка
Оно может производиться нахлестом на уже созданный из стенок каркас, а может внедряться внутрь полученной конструкции посредством сквозных отверстий, проделанных заранее, для ввинчивания в них саморезов. Естественно, что этот момент должен быть продуман изначально в плане-чертеже: будет ли квадратное донышко меньше, чтобы вместиться в конструкцию, или оно будет шире, чтобы можно было зафиксировать его саморезами снизу внахлест. В завершение формирования каркаса к основе крепится крыша сделанного своими руками скворечника. Размеры ее определяются за счет обязательного наличия выступающей передней части – карниза, служащего защитой от дождя и угрозы в виде котов. К внутренней стороне крыши крепится квадратный брус, который обеспечивает плотное сцепление со стенками скворечника при закрывании. Присоединяется он к крыше все теми же саморезами и сверлом. Чтобы можно было продолжать работу над внутренней поверхностью скворечника, рекомендуется фиксировать крышу шарнирно, на узкие петли. После этого к задней стене скворечника присверливается брус (шест), который будет служить в дальнейшем опорой при установке на дерево. Конечным этапом является фиксация жердочки (шестка) или же посадочной площадки для будущих пернатых жильцов на уровне чуть ниже летка.
Наземный скворечник
Скворечники рекомендуется вешать на высоте не менее 3 метров. Однако не каждый участок имеет высокие деревья и столбы. Поэтому целевой аудитории приходится изготавливать наземный скворечник:
- Первым делом надо выпилить старое дерево, оставив пень высотой 0,8-1,5 м (если старого дерева нет, то в землю углубляется заранее обработанный антисептиком столб);
- Далее два листа фанеры крепятся друг к другу для создания двускатной крыши (при желании можно использовать односкатный вариант);
- Следующий шаг – крепление реек в уголки, которые надо прикрепить к крыше ее с изнаночной стороны;
- Далее из отдельных досок и листов собирается открытый и невысокий ящик площадью 0,2-0,3 кв.м;
- Из фанеры нарезаются четыре столбика, которые будут соединять ящик с крышей;
- Все фрагменты соединяются, после чего скворечник устанавливается на столб.

Тематическая конструкция получается открытой. Но даже в закрытом состоянии скворечник, расположенный на высоте менее трех метров, настораживает птиц. Поэтому наземному скворечнику открытые проемы вполне подходят – птицы будут прилетать, чтобы быстро полакомиться и спастись от осадков.

Как сделать скворечник с детьми
Все описанные выше декоративные виды скворечников можно делать вместе с детьми, но такое занятие будет скорее развлечением. Дети школьного возраста уже хотят, чтобы их поделки приносили реальную пользу. Им можно доверить изготовления самого настоящего скворечника по упрощенной технологии под своим присмотром. Подростки могут даже заняться самостоятельным поиском подходящего материала.
Из инструментов школьникам понадобятся только пила и молоток. Для заготовок подойдет уже спиленное старое дерево с диаметром ствола 20-25 см:
- Чтобы сделать дно и крышу необходимо отпилить от ствола кругляши толщиной 25мм.
- Затем берется чурбак высотой 30-35 см. Древесину необходимо очистить от коры и распилить на 4 равных части, расположив полено вдоль.
- Каждую из частей опиливают так, чтобы бы получились стенки толщиной 2-3 см при соединении образующие полость внутри.
- В двух частях выпиливают с краю полукруг, чтобы при их соединении друг с другом образовался леток диаметром 5 см.
- На следующем этапе все части скрепляют между собой при помощи хомутов и саморезов.
- Сверху и снизу домик накрывают заготовленными кругляшами и прибивают их.
Готовое гнездовье вешают на ветку дерева. Такой скворечник будет уместно повесить на собственной даче или передать в детский сад.
Детям помладше можно поручить более простую работу. Например, приклеить к скворечнику-поделке необходимые детали (более аккуратно это получится, если использовать клеевой пистолет), раскрасить домик красками, сделать крепление. Во время работы приучайте их к аккуратности и обстоятельности, а после – попросите убрать рабочее место.
Мастер-классы: делаем своими руками
Оптимальный материал для скворечника — древесина лиственных пород. Дерево используют в виде досок, бревен и даже толстых веток. Последний вариант подходит тем, кто не имеет возможности приобрести качественную древесину. Нижние толстые ветки можно спилить на крепких деревьях, растущих поблизости. Вреда это им не принесет. Помимо классических скворечников встречаются дуплянки, «сарайчики», «бочки». Перед сборкой домика готовят чертеж на бумаге и карандашом наносят разметку на древесину. Замеры проводят тщательно. Работают только с сухим материалом. Сырое дерево рассохнется и деформируется. Рассмотрим поэтапно алгоритмы изготовления скворечников своими руками из трех видов материала.
Из досок
Доски нарезают в соответствии с наброском на бумаге. Классический скворечник имеет односкатную крышу. В поздних версиях стали делать треугольный «фронтон», покрытый двухскатной кровлей.
Работу делят на этапы:
- В доске, которая станет передней стенкой, вырезают входное отверстие. Его делают с помощью электролобзика и фигурной пилки или последовательно высверливают маленькие отверстия по контуру круга. После проводят выравнивание рашпилем. Есть еще один «дедовский» способ с использованием стамески и молотка, но работа займет больше времени.
- Доску соединяют с двумя боковыми с помощью саморезов. Гвозди тоже используют, но они не обеспечат такую же прочность соединения.
- Присоединяют последнюю заднюю стенку и в самом конце — днище.
- Закрепляют крышу. Для съемных вариантов изнутри к доске прибивают втулку. Положить и прижать ее к домику нельзя. Крышу закрепляют шурупами, которые потом легко открутятся.
Сколачивать доски нужно максимально плотно, чтобы не образовывались щели. Зазоры становятся результатом некачественной резки древесины или ошибок в расчетах на чертеже. Места соединения стенок законопачивают паклей или промазывают глиной. Следует помнить о жердочке, которую приколачивают в конце к уже готовому скворечнику. Палочку допустимо заменить куском дерева треугольной формы. Получится миниатюрное крылечко.
Из бревна
Процесс изготовления скворечника из бревна (дуплянки) более трудоемкий, чем работа с досками:
- Бревно зачищают от сучков и веток. Кору не снимают.
- От него отрезают кусок нужной длины.
- На бревне делают разметку. От одного края отступают 5 см, затем 20 см и еще 5 см (из расчета длины в 30 см).
- Нижний и верхний кусок будут днищем и крышей.
- Со средней частью бревна придется изрядно повозиться. Перед распиливанием делают входное отверстие.
- Бревно распиливают на три части. Дальше работают со средним модулем.
- Сердцевину тщательно выскабливают. Длинным сверлом проделывают сквозные отверстия по контуру внутреннего круга. Отступы равны ширине будущих стенок.
- С помощью пилы или ножовки сердцевину вырезают и вытаскивают.
- Внутренние стенки зачищают и выравнивают долотом. Гладкость стенкам не нужна. Птицам подойдет «шершавая отделка».
- К среднему модулю приколачивают днище и крышу. Иногда используют клей. Состав может попасть внутрь скворечника и пропитать его неприятными запахами. Лучше использовать саморезы или гвозди.
Верхнюю крышку можно заменить на доску, ведь у «родной» детали бревна не будет козырька. Если крыша приколачивается намертво, в ней заранее проделывают отверстия для проволоки, которой закрепляют скворечник на дереве.
Из веток
Из толстых веток изготавливают скворечники-срубы. Избушки сколачивают по тем же принципам, что и дома для людей, только по упрощенной схеме. Ветки в них заменяют бревна:
- Материал зачищают от сучков и обстругивают. Кривые ветки для скворечника не подойдут.
- Собирают днище, на котором формируют первый ряд — венец.
- На каждой ветке делают специальные зарубки. В лунки ложатся «бревнышки», расположенные перпендикулярно.
- Последовательно ряды выкладывают до самой крыши. Верхнюю часть выполняют из досок. Чтобы образ русской избушки не был испорчен обработанной древесиной, кровлю маскируют «веником», собранным из мелких прутьев.
Варианты изготовления скворечников со схемами
С целью создания безопасного и прочного скворечника предварительно целесообразно создать чертеж будущего строения, по которому впоследствии и осуществлять его возведение. Существует несколько вариантов изготовления птичьих жилищ:
Дуплянка

Предполагает возведение скворечника посредством полена длиной около 40 см и диаметров в 20 см. Имеется 2 способа изготовления дуплянки. Первый — предполагает применение цепной пилы и значительных физических усилий.
Для второго — достаточно наличие топора и молотка. В условиях самостоятельного изготовления наиболее оптимальным вариантом является второй способ постройки дуплянки. Рассмотрим его более детально:
- полено раскалывается посередине на 4 части;
- каждая из частей зачищается от углов, после чего соединяется друг с другом по линии раскола и стягиваются проволокой;
- перед этим предварительно в одной из частей просверливается леток.
Верх и низ дуплянки может быть выполнен из тонких спилов или досочных остатков. Их фиксация производится гвоздями.
Далее рассмотрим более сложные варианты изготовления скворечников. Для наглядности каждый из способов описан соответствующим чертежом.
Домик со скатом к задней стенке

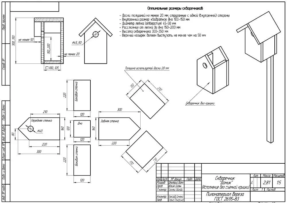
При изготовлении данной конструкции скворечника используются следующие параметры:
- толщина досок должна минимально составлять 20 мм. При этом они должны быть обструганы только с внутренней стороны;
- размер квадратного дна внутри 100-150 мм;
- оптимальный диаметр летки — 50 мм;
- расстояние от отверстия до дна — 200 мм.
Общая высота скворечника должна составлять около 350 мм. При это верхний козырек должен выступать на 50 мм.
Скворечник с двухскатной крышей

Процесс изготовления сводится к следующим действиям:
- посредством линейки и карандаша выполняется разметка досок;
- по отмеченным местам производится распил досок;
- в передней стенке проделывается круглое отверстие;
- предварительно набитыми на передней стенке гвоздями скрепляется скворечник.
Домик с односкатной крышей

Здесь этапы строительства такие:
- при помощи соответствующих инструментов производится разметка досок;
- по отмеченным линиям осуществляется их нарезка;
- на передней стенке делается отверстие;
- под отверстием устанавливается жердочка;
- при помощи скрепления предварительно вбитых гвоздей собирается скворечник.
Враги и защита
Полакомиться яйцами или птенцами в природе желающих предостаточно. Кроме того, скворечник могут занять новоселы «без ордера», а то и крайне нежелательные в саду, как, напр. соня. Сонь интересуют семена в сочных плодах, и всего пара этих зверьков может перепортить урожай в целом саду. Еще скворечник могут захватить белки, летучие мыши, а в Сибири и бурундуки. Вреда от четвероногих оккупантов в общем нет, но полезные птицы лишаются гнездовий.
Злейшие разорители скворечников – крупные дятлы, большой пестрый и желна. К началу гнездового времени эти в целом полезные птицы испытывают острый дефицит животного белка, самим им тоже гнездиться пора, и ради этого дятлы расклевывают скворечники, уничтожая яйца и птенцов. Ничего не поделаешь, все есть яд и все есть лекарство не только в медицине.
На втором месте по опасности для выводка – коты, домашние и дикие. Мелкие хищники из семейства куньих, как это ни странно на первый взгляд, для кладки и птенцов особой опасности не представляют: ко времени гнездования птиц в их распоряжении имеется обильная легко доступная добыча – мыши, полевки.

Защита скворечников от разорения
Способы защиты скворечника от разорения показаны на рис. Поз. 1 – от дятлов: жестяной воротничок шириной 5-6 см, обивка мелкими гвоздиками на таком же расстоянии или накладка из прямослойной древесины с волокнами, ориентированными горизонтально; дело в том, что дятлы могут расклевывать только дерево с вертикальными волокнами. Последний способ предпочтительнее, т.к. накладка не ржавеет и не создает неудобств хозяевам домика. Но учтите, что все остальное строение должно быть из дерева с волокнами, ориентированными вертикально или наклонно, иначе птичий домик быстро расщелится.
Поз. 2 – защита от котов. Лучший способ – антикошачья «юбка»; ее можно смастерить из сухих веток или отрезков проволоки. По 1-2 коротких прутика у корневой части обрезают так, чтобы остались небольшие наклонные пеньки, и весь пояс скрепляют проходящей под ними проволокой, не стягивая ее туго, чтобы не повредить дерево. «Юбку» располагают на такой же высоте, как и нижний жестяной пояс, см. ниже.
Порог внутри под летком (внизу на поз. 2) менее трудоемок, но неудобен как птенцам, так и их родителям. Его делают, если нет возможности устроить антикошачий пояс. Еще хорошее средство «от котов» – выступающий наружу на 3-5 см деревянный воротничок вокруг летка.
Способ на поз. 3 – жестяные пояса – дает полную гарантию как от любых хищников, так и от оккупантов. Указанные на рис. размеры, в см, нужно выдержать с точностью до 3-4 см; они рассчитаны так, чтобы потенциальные разорители не могли перепрыгнуть пояса, зацепившись затем за кору, ни снизу, ни сверху. Разумеется, на участке ствола между поясами не должно быть веток, сучьев, кормушек и др. опор для хищников.
Конструктивные особенности и материалы
В классическом исполнении, самодельный домик для пернатых обитателей представляет собой прямоугольную конструкцию (короб) с одно – или двускатной съемной крышей, глухим дном, отверстием (летком) и жердочкой в лицевой части домика.
Существуют и более оригинальные виды скворечников:
- выдолбленные из цельного бревна (дуплянки);
- плетенные из лозы;
- собранные из брусков в виде сруба.
Старая обувь или обычная картонная коробка может стать неплохим местом для выведения и воспитания птенцов. Как показала практика, птицам внешний вид их жилища совершенно неважен. Главное для пернатых – это удобство и безопасность. Исходя из этого, важными параметрами такого жилища являются: габариты конструкции, диаметр летка, длина жерди.
Естественными врагами птиц и их гнезд в условиях загородного хозяйства являются коты и дятлы. Главной защитой от хищников является свес крыши, длина которого варьируется от 5 до 10 см. Эффективной защитой от дятлов считается металлическая накладка на леток, которая помешает добраться до яиц.
Из чего сделать скворечник в домашних условиях? Для создания правильного домика для птиц подходят практически все подручные материалы, которые есть в хозяйстве у любого дачника и домашнего мастера.
Подойдет древесина и ее любые производные:
- ДСП (древесностружечная плита);
- МДФ и ДВП (древесноволокнистые плиты различной плотности);
- OSB (ориентировано-стружечная плита);
- фанера.
Для изготовления сезонных гнездовий подойдет даже гофрированный картон и пенопласт. Достаточно много конструкций домиков для птиц, выполненных из пластиковых емкостей из-под бутилированной воды.
Идеальный вариант – скворечник из необработанных досок древесины лиственных пород, толщиной от 20 мм, собранный при помощи металлических крепежных элементов (гвоздей и саморезов).
Особенности создания скворечников
Как видите, создать своими руками скворечник для птиц несложно, но следует придерживаться некоторых особенностей конструкции и рекомендаций опытных людей, чтобы процесс прошел правильно и домик для птиц получился действительно качественным:
- Надежным будет только скворечник, созданный из прочных и добротных материалов. Конечно же, наилучшим образом для создания подходит дерево;
- Обязательно проследите за тем, чтобы использовалась специальная древесина — ольха, береза, осина, другие лиственные породы. Использовать для скворечника ДВП, ОСБ или ДСП не рекомендуется, эти материалы токсичны и недолговечны при использовании на улице;
- Покраска скворечника далеко необязательна, так как запах краски может отпугивать птиц. Если же хотите привести его в порядок, можете покрасить скворечник краской без запаха;
- Внутренние стенки скворечника должны быть шероховатыми для удобства передвижения птиц внутри. Если же вы делаете скворечник из гладкой доски, потрудитесь нанести на внутренние стороны материалов насечки. Сделать их можно обыкновенной стамеской;
- Жердочка внутри далеко не обязательна, но вот внешний уступ на конструкции можно сделать;
- Леток необходимо сделать круглой формы, так птицы не будут травмироваться при входе и выходе;
- Уход за скворечником будет намного проще, если вы изначально об этом позаботитесь и сделаете крышу съемной;
- И последнее, также насчет крыши скворечника — она должна быть покатой, чтобы влага не задерживалась на поверхности. Ровная неокрашенная крыша может прийти в непригодность достаточно быстро.
Размеры скворечника (схема, чертеж)
Стандартный габарит традиционного скворечника следующий: высотой он должен быть 0,4 метра, дно следует сделать квадратное размером около 15 сантиметров, диаметр же летка должен составить пять сантиметров. В том случае, если скворечник сделать поменьше размером, в нём с удовольствием поселятся непоседливые синички. В леток должна помещаться птичка, но при этом хищник не должен иметь никакого шанса попасть через слишком большое отверстие внутрь изготовленного скворечника.

6 основных составляющих частей скворечника
Если у вас под рукой имеются необходимые материалы, подробная схема (чертеж) устройства скворечника и вы знаете какого размера он должен быть, считайте, что дом для птиц практически готов. На сборку у вас не должно уйти больше двух часов.

Схема сборки скворечника с односкатной и двускастной крышей
Классический скворечник состоит из двух боковых, передней и задней стенки, пола и крыши. Оптимальная высота скворечника – 22-25 см, глубина – 15 см, ширина – 20 см. Чтобы стыки домика со временем не разошлись соединять составные части между собой предпочтительнее саморезами, а не гвоздями.

Домик для птичек с двухскатной кровлей
Популярны среди любителей мастерить в свободное время, украшать свои дачные участки птичьими домиками, варианты с двухскатными крышами. Скворечник с такой кровлей не только практичен, так как он способен обеспечить быстрый отток потоков воды во время дождя, он ещё и очень симпатично смотрится в саду. Правда, чтобы изготовить домик с двускатной крышей придётся затратить немного больше времени.

Заселиться в такой домик будет мечта каждой птички
Домики с нестандартными формами
Для основы можно использовать простой короб традиционных прямоугольных форм, их выбирают многие мастера, так как это практично и рационально. Однако, приемлемо изготовить скворечник и совершенно нестандартной формы, это будет выглядеть очень интересно, вполне естественно среди природной среды. Любой стильный и эффектный дизайн птичьего домика, выдаёт творческий подход к делу, и демонстрирует хороший вкус хозяев дома.

Скворечник-общежитие для большой и дружной пернатой семьи
Скворечник из фанеры
Приблизительно по тому же принципу изготовляют скворечник и из обычной фанеры. В первую очередь следует определиться с его размерами, сделать разметку деталей домика на фанере, о размерах мы писали выше.
Не стоит забывать про то, что нужно оставлять и поправки. Абсолютно все срезы следует отшлифовать, затем детали аккуратно склеить. После этого детали скрепляют саморезами, прикручивают дно, а крышку делают съёмной
Последнее важно для того, чтобы раз в году провести в скворечнике уборку осенью, подготовить птичий домик для следующей весны

Выбор материалов
Чтобы впоследствии избежать лишней работы, рекомендуется подобрать две доски разной ширины длинной порядка один метр каждая. На фасадную и тыльную стороны будущего скворечника лучше взять доску шириной 200 мм, а на фланги – 150 мм. Скворечник лучше всего скреплять саморезами, но можно обойтись и гвоздями.

Во время конструирования жилища для птиц пригодятся как механические, так и электронные приспособления. По вполне понятным причинам использование последних сделает работу более быстрой и эффективной.

У вас обязательно должны быть следующие приспособления: электролобзик или ножовка, дрель со сверлом на 5 мм, шуруповерт или крестовая отвертка, молоток, угольник и простой карандаш. В том или ином виде, все эти приборы, при желании, можно найти практически в своем доме или одолжить у соседей.

Размеры скворечника: что нужно учесть
Выше подробно рассмотрены вопросы о том, как правильно сделать конструкцию с применением разных материалов. После комплексного анализа не сложно сделать вывод о преимуществах натурального дерева:
- это экологически чистый, недорогой материал;
- он обладает высокой прочностью и хорошими изоляционными характеристиками;
- его не слишком сложно обрабатывать в домашних условиях своими руками с применением простейших инструментов.
Последний пункт в этом списке заслуживает отдельного внимания. Расчетливые владельцы загородных участков делают жилье привлекательным для птиц определенных видов. Именно поэтому необходимо учитывать не только физиологические отличия скворцов и синиц, их особые привычки, предпочтения.
Сразу следует отметить, что построить по ГОСТу такой миниатюрный объект не получится. Для скворечника не разработаны стандартные справочные параметры.
На фото с разными вариантами видно, что имеет значение не только диаметр отверстия в скворечнике, но и расположение летка
Чтобы узнать, как построить домик без ошибок, нужны не только чертеж и размеры. Следует уточнить, для каких обитателей он предназначен
Размеры скворечника для скворцов
Типовые параметры конструкции приведены в следующей таблице:
| Ширина х Глубина дна (крыши). Минимальное – максимальное значение в мм. | Высота, мм | Диаметр отверстия в скворечнике для скворца, мм | Дополнения |
| 90 – 110 х 90 – 110 | 300 – 400 | 45 – 55 | Отверстие летка делают круглым, внутренние кромки тщательно обрабатывают, удаляют заусенцы. |
Чертеж домика для скворцов со стационарной крышей
Привлечь птиц на участок поможет подобная кормушка, сделанная своими руками
Когда пернатые соседи освоили новое жилище, такое сооружение убирают. После этого птицы начнут уничтожать вредных насекомых.
Синичник: чертеж и размеры
Размеры скворечника для синиц немного отличаются от предыдущего варианта:
| Ширина х Глубина, мм | Высота, мм | Диаметр летка, мм | Форма летка |
| 100 – 120 х 100 – 120 | 240 – 310 | 30 – 40 | Круглая |
Как сделать одиночный и коллективный домик для синичек, помогут разобраться эти чертежи
Домик для трясогузки: чертеж и размеры
Чтобы птицам было комфортно, надо учитывать следующие параметры:
| Ширина х Глубина, мм | Высота, мм | Ширина летка, мм | Форма летка |
| 300 – 350х 400 – 450 | 110 – 140 | 35 – 40 | Прямоугольная |
Чертежи можно создать самостоятельно на основе предоставленных в таблице данных. Но надо помнить, что лапки трясогузки лучше приспособлены к бегу, чем к цеплянию за вертикальные поверхности. Этой птичке сложно проникнуть в леток стандартного скворечника. Для нее конструкцию дополняют «порогом», специальной площадкой шириной от 80 до 120 мм.
По фотографии понятно, как сделать простую конструкцию из подходящих досок
Когда ребята мастерят домик для птиц своими руками, они вырабатывают полезные навыки





























